Aszimmetrikus kiskonténerek

 

Típus Tetőajtó Lenyíló ajtó Ponyvarögzítő
AN-03 - - X
AN-05 - Rendelhető X
AN-07 - X X
AN-08 - - X
AN-10 - - X
UB-03 - - X
UBZ-03 X - -
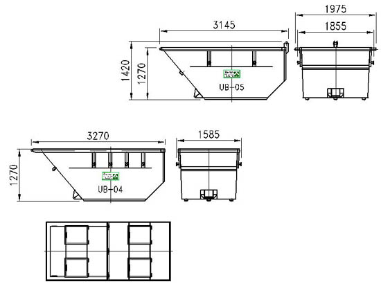
UB-04 - - -
UBZ-04 X - -
UB-05 - - -
UBZ-05 X - -

X: Tartalmazza -: Nem rendelhető